物件詳細情報
| 交通 |
東京メトロ有楽町線 / 江戸川橋駅 徒歩5分 |
| その他交通 |
JR総武線 / 飯田橋駅 徒歩13分 東京メトロ丸ノ内線 / 茗荷谷駅 徒歩11分
|
| 所在地 |
東京都文京区水道2丁目 |
| 物件種目 |
貸マンション |
| 賃料 |
24.1万円 |
管理費等 |
12,000円 |
| 敷金 / 保証金 |
1ヶ月/なし |
礼金 |
1ヶ月 |
| 敷引 |
実費 |
保証金償却 |
- |
| その他一時金 |
室内清掃費:73,141円、 鍵交換費:16,500円 |
保険等 |
加入要 / 2年間 |
| 維持費等 |
口座振替事務手数料:110円/月 |
| 建物名・部屋番号 |
パークアクシス文京ステージ 603 |
| 設備 |
宅配BOX システムキッチン バイク置き場 バス・トイレ別室 室内洗濯機置場 オートロック グリル エレベーター 浴室乾燥機 追焚機能 エアコン バルコニー インターネット対応 CATV CS BS端子 |
| 備考 |
賃貸保証等:利用可 初回:月額賃料(共益費・駐車場料金含む)の50%、年間:9,600円 管理形態/管理員の勤務形態:ー/巡回 バルコニー:8. 00㎡ [退去時費用 退去費用実費精算※故意・過失等別途実費] NO:72217854
|
| エネルギー消費性能 |
- |
断熱性能 |
- |
| 目安光熱費 |
- |
|
|
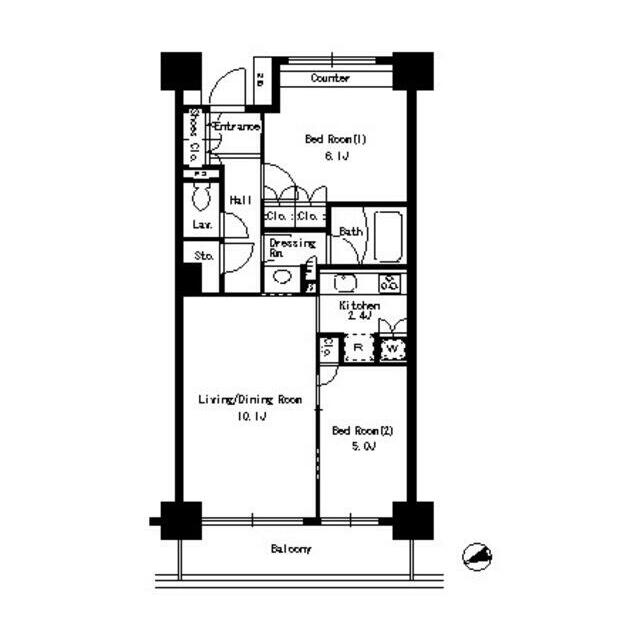
| 間取り |
2LDK |
主要採光面 |
西 |
| 専有面積 |
55.41㎡ |
階建/階 |
11階建/6階 |
| 築年月 |
2005年9月(築20年8ヶ月) |
建物構造 |
RC |
| 総戸数 |
- |
|
|
| 駐車場 |
なし |
バイク置き場 |
有 |
| 駐輪場 |
なし |
ペット |
あり |
| 契約期間 |
2年 |
現況 |
居住中 |
| 条件等 |
- |
入居可能時期 |
予定 2025年07月下旬 |
| 更新料 |
新賃料 1ヶ月 |
|
|
| 物件番号 |
1179837609 |
管理番号 |
20250610013722 |
| 情報公開日 |
2025/06/10 |
次回更新予定日 |
2026/04/28 |
※「-」と表示されている項目については、情報提供会社にご確認ください。
情報提供会社
sample string 1
- 交通:
- railLineName/stationName 徒歩1分
【バス】3分 sample string 15 停歩4分
- 住所:
- sample string 5cityNametownNamebanchi buildingName
- TEL:
- sample string 3
- FAX:
- sample string 4
- 所属団体など:
- 取引態様:
- 仲介
- 免許番号:
- sample string 42
メールでお問い合わせ
