物件詳細情報
| 交通 |
東京メトロ丸ノ内線 / 本郷三丁目駅 徒歩6分 |
| その他交通 |
JR中央線(東京~塩尻) / 御茶ノ水駅 徒歩8分 JR総武線 / 水道橋駅 徒歩9分
|
| 所在地 |
東京都文京区本郷3丁目 |
| 物件種目 |
貸マンション |
| 賃料 |
22.2万円 |
管理費等 |
15,000円 |
| 敷金 / 保証金 |
1ヶ月/なし |
礼金 |
1ヶ月 |
| 敷引 |
実費 |
保証金償却 |
- |
| その他一時金 |
鍵交換費用:33,000円 |
保険等 |
加入要 / 2年間 19,000円 |
| 維持費等 |
インターネット使用料:1,650円/月 |
| 建物名・部屋番号 |
レジディア文京本郷Ⅲ |
| 設備 |
宅配BOX システムキッチン バイク置き場 室内洗濯機置場 オートロック モニタ付インターホン 防犯カメラ エレベーター 浴室乾燥機 エアコン 駐輪場 トイレ |
| 備考 |
賃貸保証等:加入要 初回契約時:40%、更新時:10,000円、月額:1,000円 [退去時費用 退去費用実費精算※故意・過失等別途実費] バ イク置場(空有):月額5,500円 無料駐輪場(空有) ※1年未満解約時、賃料1ヶ月分の違約金有り※保証会社利用必須※大手法人契約の場合は敷金2ヶ月 NO:92161553
|
| エネルギー消費性能 |
- |
断熱性能 |
- |
| 目安光熱費 |
- |
|
|
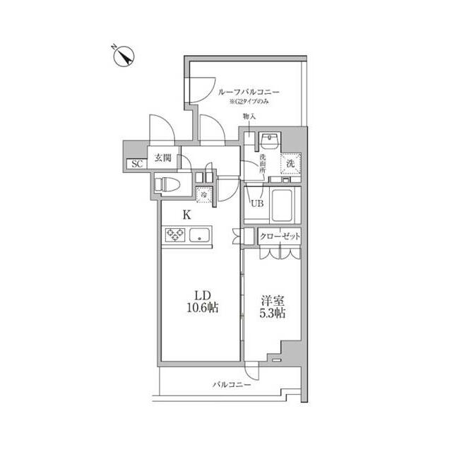
| 間取り |
1LDK |
主要採光面 |
南 |
| 専有面積 |
40.15㎡ |
階建/階 |
13階建/13階 |
| 築年月 |
2014年7月(築11年10ヶ月) |
建物構造 |
RC |
| 総戸数 |
47戸 |
|
|
| 駐車場 |
なし |
バイク置き場 |
有 |
| 駐輪場 |
有 |
ペット |
- |
| 契約期間 |
2年 |
現況 |
居住中 |
| 条件等 |
- |
入居可能時期 |
予定 2025年07月下旬 |
| 更新料 |
新賃料 1ヶ月 |
|
|
| 物件番号 |
1137283506 |
管理番号 |
20250520025952 |
| 情報公開日 |
2025/05/29 |
次回更新予定日 |
2026/04/30 |
※「-」と表示されている項目については、情報提供会社にご確認ください。
情報提供会社
sample string 1
- 交通:
- railLineName/stationName 徒歩1分
【バス】3分 sample string 15 停歩4分
- 住所:
- sample string 5cityNametownNamebanchi buildingName
- TEL:
- sample string 3
- FAX:
- sample string 4
- 所属団体など:
- 取引態様:
- 仲介
- 免許番号:
- sample string 42
メールでお問い合わせ
